string(4) "3362"

Котел КВЖ 1.0 МВт жидкотопливный (под отечественную горелку РМГ) в Севастополе

Версия
для печати
В наличии на складе Цена в рублях с НДС 806 000
Получите скидку
у менеджера
Цена на котел КВЖ 1.0 МВт жидкотопливный (под отечественную горелку РМГ) с доставкой от 806 000 рублей с НДС
Вид топкиДизельная горелка
Максимальная тепловая мощность, МВт1
ТопливоДизель, Жидкое
Отапливаемая площадь, м²7700-11000
Доставка ТК в г. Севастополь и по России
Безналичный расчет
Подобрать котел по мощности
Опросный лист
Эту продукцию можно
купить в лизинг
  • Технические
    характеристики
  • Описание
    товара
  • Комплект
    поставки
  • Дополнительно
    потребуется
  • Сертификаты и
    гарантии
  • Отзывы о
    продукции
  • Видео
    обзор
  • Подбор
    котла

Дизельный котел КВЖ надежная и эффективная водотрубная конструкция

  • Развитая конвективная поверхность нагрева снижает температуру уходящих газов 180-200°C - КПД 92%
  • Все элементы топочной камеры равномерно охлаждаются теплоносителем
  • Отсутствие трубных досок исключает деформации и разрывы сварных швов
  • Быстрый выход на режим и эксплуатационная гибкость
  • Высокая скорость потока теплоносителя (профилактика накипи) и минимальные требования к химводоподготовке

Технические характеристики котла КВЖ 1.0 МВт житкотопливного (под отечественную горелку РМГ)

Тип Котел КВЖ
Тип отопительного котла Жидкотопливный
Бренд HeatExpert
Марка Котел КВЖ 1.0 на дизеле
Вид топки Дизельная горелка
Максимальная тепловая мощность, МВт 1
Максимальная тепловая мощность, кВт 1000
Максимальная тепловая мощность, Гкал 0.86
Диапазон регулирования мощности, % 40-100
Топливо Дизель, Жидкое
Низшая теплота сгорания проектного топлива, кКал/нм³ 10200
КПД котла на ДИЗЕЛЕ, не менее, % 91.4
Расход ДИЗЕЛЯ среднечасовой за отопительный сезон, кг/ч 52
Расход ДИЗЕЛЯ при максимальной нагрузке котла, кг/ч 92
Расход условного топлива, кг/ч 134
Минимальная температура воды на входе в котел, °C 55
Максимальная температура воды на выходе из котла, °C 115
Давление воды, не более, МПа (кгс/см²) 0.3-0.6 (3-6)
Номинальный расход теплоносителя, м³/ч 34
Расход теплоносителя через котел min-max, м³/ч 25-42
Гидравлическое сопротивление при номинальном расходе, МПа (кгс/cм²) не более 0.07 (0.7)
Аэродинамическое сопротивление, Па (мм. вод. ст.) 220 (22)
Давление в топке, Па - 20 (- 2)
Объем уходящих газов, м³/ч 1950
Температура уходящих газов, не более, °С 182
Тяга Принудительная
Водяной объем котла, л 650
Объем топочной камеры, м³ 2.47
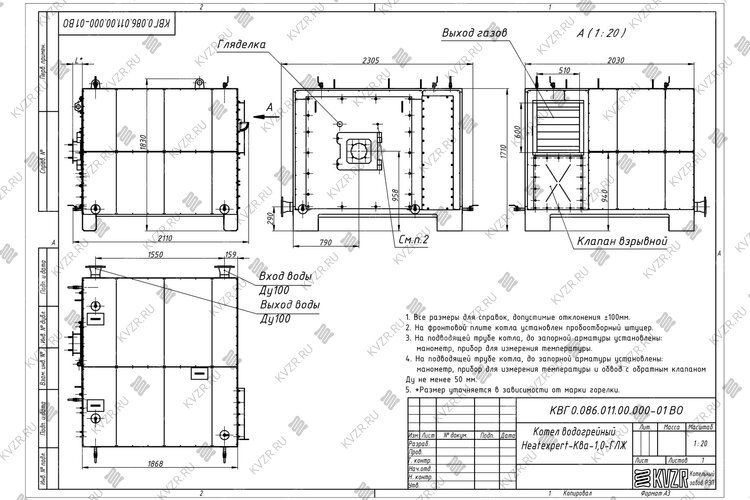
Размер топочной камеры, длина*ширина*высота, мм 1460х1300х1300
Присоединительные размеры по водяному тракту, Ду 100
Присоединительные размеры газохода уходящих газов, ширина*высота / сечение, мм/м² 510х600 / 0.46
Габаритные размеры котла, длина*ширина*высота, мм 2110х2305х1830
Масса, кг 2900
Вид Водогрейный
Конструкция котла водотрубная, горизонтальная
Количество контуров Одноконтурный
Размещение Напольный
Тип камеры сгорания Закрытый
Управление Электронное
Энергонезависимый Нет
Тип питания Трехфазное
Встроенный циркуляционный насос Нет
Встроенный расширительный бак Нет
Энергоэффективность Высокая
Отапливаемая площадь, м² от 7700 до 11000
Отапливаемый объем, м³ от 22900 до 32900

Водотрубный трехходовой котел КВЖ 1.0 МВт на жидком топливе

Надежный и эффективный промышленный котел КВЖ 1.0 мощностью 1,0 МВт /1000 кВт на жидком топливе, предназначен для стабильного отопления и горячего водоснабжения и вентиляции производственных, коммерческих и жилищно-коммунальных объектов площадью до 11000 м², температурой теплоносителя на выходе 95 - 115 °С, рабочим давлением 1,0 - 1,0 кгс/см (3,0 - 6,0) МПа.

Водотрубная конструкция с продуманной многоходовой схемой движения газов и теплоносителя обеспечивает высокий КПД, долговечность и простоту в эксплуатации.

Котел совместим с широкой номенклатурой жидкотопливных блочных горелок

  • отечественных EMMA, ILKA, РГМГ, ГМГ;
  • импортных BALTUR, UNIGAS, ECOSTAR, Oilon, WEISHAUPT, RIELLO, FLAME, LAMBORGINI, БУДЕРУС, VIESSMANN, и прочие.

Жидкотопливный котел КВЖ 1.0 МВт - оборудование для специалистов, выбирающих надежность и экономичность, а не просто оборудование.

Водотрубный котел КВЖ 1.0 МВт — это не эволюция двухходовых жаротрубных моделей, а принципиально иная конструкция, разработанная для устранения их ключевых слабых мест: низкой надежности, высоких эксплуатационных расходов и рисков.

Ключевые инженерные решения и их преимущества:

1. Конструкция трубной системы "труба-коллектор" вместо "труба-трубная решетка".

Конструктивное решение: Отсутствие массивных трубных досок. Все соединения — это трубы, вваренные в коллекторы, которые охлаждаются теплоносителем.

Преимущества:

  • Снижение эксплуатационных рисков: Исключены термические напряжения и деформации, характерные для трубных решеток жаротрубных котлов при циклических нагрузках и переменных режимах работы. Это главная причина их растрескивания и выхода из строя.
  • Продленный ресурс: Равномерное распределение тепловых нагрузок повышает расчетный срок службы теплообменника.
  • Снижение стоимости обслуживания: Отсутствие необходимости в регулярной подтяжке соединений или контроле состояния решетки.

2. Развитый конвективный пучок с противотоком и шахматным расположением труб.

Конструктивное решение: Дымовые газы совершают три хода, поперечно омывая конвективные трубы, расположенные в шахматном порядке. Движение воды организовано по принципу противотока.

Преимущества:

  • Максимальный теплосъем: Турбулизация потока газов, поперечное омывание труб газами и максимальный температурный напор обеспечивают высокую эффективность при компактных габаритах.
  • Экономия топлива: Реализованная схема теплопередачи напрямую снижает расход газа/дизеля на выработку того же количества тепла.

3. Принудительная высокая скорость теплоносителя в малом контуре.

Конструктивное решение: Малый водяной объем и конструкция коллекторов с перегородками обеспечивают высокую скорость воды в трубах.

Преимущества:

  • Снижение затрат на водоподготовку: Высокая скорость потока предотвращает ламинарное течение и интенсивное образование накипи. Котел более толерантен к качеству воды.
  • Повышение операционной эффективности: Быстрый выход на номинальный режим (малая тепловая инерционность) позволяет эффективно работать в модулируемом режиме, подстраиваясь под переменную нагрузку.

4. Фундаментальное преимущество безопасности.

Конструктивное решение: Малый водяной объем исключают накопление значительной энергии.

Преимущества:

  • Снижение категории риска: При разгерметизации давление падает быстрее, чем происходит вскипание теплоносителя. Это исключает риск взрыва котла как единого целого — главной аварии жаротрубных конструкций.

Сравнение водотрубных и жаротрубных жидкотопливных котлов:

ПараметрВодотрубный котел КВЖ 1.0Типовой жаротрубный котел КВЖ 1.0Преимущества
КПДДо 93% (газоплотность, 3 хода)88 - 91%Экономия 3 - 5% на топливе
Ресурс теплообменникаВыше (отсутствие термических напряжений)Ограничен циклическими нагрузкамиМеньше простоев и затрат на замену
Требования к водеНиже (высокая скорость потока)Высокие (риск застоя и накипи)Снижение расходов на химводоподготовку
Риск аварииМинимальный (малый объем/давление)Повышенный (большой объем)Взрывобезопасность

Сфера применения

Промышленный жидкотопливный котел КВ Ж-1.0 -115 (95) ТЖ идеально подходит для автономного отопления и ГВС и вентиляции различных объектов:

  • Промышленность: Цеха, склады, ангары, производственные базы, гаражи, административные здания, автосервисы, станции СТО, сушильные камеры.
  • Сельское хозяйство: Теплицы, фермы, птицефабрики, зерносушильные комплексы.
  • Социальная сфера: Больницы, школы, детские сады, санатории, клубы, административные здания, магазины.
  • ЖКХ: Блочно-модульные и стационарные отопительные котельные для отопления жилых кварталов.

Доставка котельного оборудования осуществляется по всей России и СНГ

Мы осуществляем отгрузку жидкотопливных котлов КВЖ-1.0 МВт автотранспортом и железнодорожными перевозчиками в любую точку России и стран СНГ. Каждый котел КВЖ 1,0 надежно упаковывается и крепится для безопасной транспортировки.

  • Для расчета точной стоимости доставки до вашего города или населенного пункта отправьте нам онлайн-заявку. Наши логисты оперативно подготовят для вас варианты доставки с просчитанной стоимостью и сроками.
  • Вы также можете уточнить любую информацию об условиях покупки котла онлайн, через форму обратной связи.

Как купить котел КВЖ-1,0 (1000 кВт) на жидком топливе

Чтобы купить промышленный жидкотопливный котел КВЖ-1.0 ЛЖ и получить комплексное решение для вашей котельной, свяжитесь с нами любым удобным способом:

Позвоните в отдел сбыта:

+ 8-800-700-17-43

+7 (3852) 29-97-41 (многоканальный)

Напишите в отдел сбыта:

SB@KVZR.RU

Отправьте онлайн-заявку на коммерческое предложение через сайт.

Наши специалисты помогут вам:

  • Подобрать необходимую комплектацию и вспомогательное оборудование (горелку, щит управления, насосы).
  • Рассчитать окончательную стоимость котла с учетом доставки до вашего региона.
  • Просчитать индивидуальные доработки под ваши технические условия.

Индивидуальные доработки и производство котлов КВЖ-1,0 на жидком топливе

Котельный завод «РЭП» изготавливает жидкотопливные котлы КВЖ-1.0 не только по типовым проектам, но и по техническому заданию заказчика.

Мы можем реализовать для вас:

  • Зеркальное исполнение (расположение штуцеров и патрубков с противоположной стороны).
  • Изготовление опускных газоходов.
  • Выполненные фронтальной плиты с амбразурой под вашу горелку.
  • По спец заказу изготовление котла КВЖ-1,0 из цельнотянутой бесшовной трубы ГОСТ 8732 (34).
  • И другие изменения под особенности вашей котельной.

Сертификация и маркировка

Вся наша продукция соответствует самым строгим стандартам качества и безопасности.

       Производство по ГОСТ: Промышленные жидкотопливные котлы КВЖ-1,0 изготавливаются по ТУ в соответствии с требованиями ГОСТ 30735-10001.

       Полная сертификация: Оборудование имеет все необходимые сертификаты соответствия Техническим регламентам Таможенного союза:

  •          ТР ТС 010/2011 «О безопасности машин и оборудования»
  •          ТР ТС 016/2011 «О безопасности аппаратов, работающих на газообразном топливе»
  •          ТР ТС 032/2013 «О безопасности оборудования, работающего под избыточным давлением»

Расшифровка маркировки котла КВЖ-1,0 на жидком топливе:

  • К – котел
  • В – водогрейный
  • Ж – жидкое топливо
  • 1.0 – теплопроизводительность 1,0 МВт (1000 кВт)

Дополнительные аббревиатуры в маркировке:

  • КВЖ-1.0 ЛЖ– котел, работающий на легком жидком топливе.
  • КВЖ-1.0 ТЖ– котел, работающий на тяжелом жидком топливе.
  • КВЖ-1,0-95 – максимальная температура нагрева воды на выходе 95 °C.
  • КВЖ-1,0-115 – максимальная температура нагрева воды на выходе 115 °C.
  • КВЖ-1000 кВт – производительность, указанная в киловаттах.
  • КСВЖ-1.0 ЛЖ/ТЖ– котел стальной водогрейный.

Комплект поставки котла КВЖ 1.0 МВт житкотопливного (под отечественную горелку РМГ)

Цена водогрейного котла КВЖ 1.0 МВт житкотопливного (под отечественную горелку РМГ) в Севастополе включает в себя котельный блок в изоляции, вентили, затворы, манометры, термометры и предохранительные клапаны. Ниже приведена подробная информация.

Дополнительное вспомогательное оборудование для работы котла КВЖ 1.0 МВт житкотопливного (под отечественную горелку РМГ)

Для эффективной и надежной работы котла КВЖ 1.0 МВт житкотопливного (под отечественную горелку РМГ) в вашей котельной вам потребуется дополнительное оборудование - автоматика ЩУК, горелка импортного или отечественного производства, насос сетевой и подпиточный, регулятор давления газа (по необходимости), газоходы и переходники для газового тракта, дымовая труба. Мы предлагаем рассмотреть типовые варианты комплектации.

В случае если у вас на объекте уже имеется насосное и горелочное оборудования, мы можем проверить совместимость котла КВЖ 1.0 МВт житкотопливного (под отечественную горелку РМГ) нашего производства и вашего оборудования.

Можем изготовить нестандартные узлы для выполнения быстрого монтажа котла - газоходы и узлы обвязки.

Типовую схему монтажа котла вы можете посмотреть во вкладке схемы подключения и монтаж.

  • автоматический розжиг и останов котла;
  • поддержание в заданных пределах температуры теплоносителя на выходе из котла путем позиционного регулирования мощности горелки;
  • плановый останов котла;
  • аварийный останов котла с выдачей аварийной звуковой и световой сигнализации, отображение причины останова на OLED индикаторе и запоминание ее;
  • автоматическая защита, обеспечивающая останов котла и блокировку его пуска при возникновении аварийных ситуаций.
Цена 170 000 рублей с НДС

Производим газоходы по индивидуальному заказу согласно схеме компоновки котельной. Системы газоходов могут включать в себя:

  • шиберы;
  • газоходы различного сечения;
  • переходы;
  • тройники;
  • карманы всасывающие дымососов.

Используется в качестве сетевого насоса в промышленных отопительных котельных

Цена 75 500 рублей с НДС

Используется в качестве подпиточного насоса в промышленных отопительных котельных

Цена 47 500 рублей с НДС

Используется в качестве сетевого насоса в промышленных отопительных котельных

Цена 219 600 рублей с НДС

Используется в качестве сетевого насоса в промышленных отопительных котельных

Цена 232 200 рублей с НДС

Дымосос для удаления дымовых газов из котла.

Цена 97 500 рублей с НДС

Схемы подключения и монтаж котла КВЖ 1.0 МВт житкотопливного (под отечественную горелку РМГ)

Водогрейный стальной отопительный котел КВЖ 1.0 МВт жидкотопливный (под отечественную горелку РМГ), предназначен для получения горячей воды номинальной температурой на выходе из котла от 95 до 115 °С рабочим давлением до 0,6 (6,0) МПа (кгс/см), используемой в системах централизованного теплоснабжения на нужды отопления, горячего водоснабжения. Устанавливается в производственных, промышленных и отопительных котельных.

Дополнительные услуги

Сертификат и качество котла КВЖ 1.0 МВт житкотопливного (под отечественную горелку РМГ)

Водогрейные котлы производства Котельный завод "РЭП" соответствуют строгим стандартам качества и безопасности. Завод производит котлы КВЖ-1.0 в соответствии с требованиями ГОСТ 30735-3001 по Техническим Условиям завода.

Котлы имеют сертификаты соответствия Техническим регламентам Таможенного союза:

  • ТР ТС 010/2011 «О безопасности машин и оборудования».
  • ТР ТС 032/2013 - «О безопасности оборудования, работающего под избыточным давлением».
  • ТР ТС 016/2011 «О безопасности аппаратов, работающих на газообразном топливе»

Водогрейный котел КВЖ 1.0 МВт жидкотопливный (под отечественную горелку РМГ) имеет гарантийный срок 24 месяца и срок работы при соблюдении правил монтажа и эксплуатации оборудования 10 лет.

Расшифровка маркировки котла КВЖ 1.0 МВт житкотопливного (под отечественную горелку РМГ):

  • К – котел
  • В – водогрейный
  • Ж - работа на жидком топливе дизель
  • 1,0 – теплопроизводительность 1.0 МВт (1000 кВт)
  • HeatExpert - зарегистрированный товарный знак Котельного завода "РЭП"

Дополнительные аббревиатуры в маркировке:

  • котел КВЖ 1.0 МВт - котел водогрейный жидкотопливный мощностью 1.0 МВт;
  • котел КВЖ 1.0-95/115- котел водогрейный жидкотопливный 1.0 МВт с температурой до 95 /115°С;
  • котел КВЖ 1.0-95 Г – максимальная температура нагрева воды на выходе 95 °C;
  • котел КВЖ 1.0-115 Г – максимальная температура нагрева воды на выходе 115 °C;
  • КВЖ 1.0-95-ГМ - котел водогрейный 1.0 МВт на жидком топливе с температурой нагрева воды 95 °С;
  • КВЖ 1.0-115-ГМ - котел водогрейный 1.0 МВт на жидком топливе с температурой нагрева воды 115 °С.
Сертификат на водогрейные котлы .jpg
Сертификат на водогрейные котлы
Знак товарный на водогрейные котлы HEATEXPERT .jpg
Товарный знак на водогрейные котлы HEATEXPERT

Отзывы о продукции

Отзыва о товаре пока нет, будьте первыми!

Дизельный водогрейный котел 1.0 ( - мощность 1.0 МВт; - топливо дизель; - температура 95 115 градусов; - отапливаемая площадь* от 7700 до 11000 м2; - отапливаемый объем* от 22900 до 32900 м3 (* диапазон для самого холодного и самого теплого региона РФ)); - применение для отопления производства, жилых зданий, цехов, складов, промышленных предприятий, теплиц, гаражей, больниц, школ, садов, для монтажа в модульных котельных.

Смотреть видеообзор на
Подберите необходимую мощность котла для вашего объекта
Тип здания
Регион
Населенный пункт
Вид топлива
Наружный объем здания (м3)
Отапливаемый подвал

Как подобрать мощность котла для вашего объекта

Подобрать мощность котла по площади важно учитывая не только площадь и объем здания, но и тип зданий и климатические данные региона.

На нашем сайте калькулятор расчета мощности котла учитывает тепло, требуемое на возмещение тепловых потерь через строительные конструкции и потери, вызываемые инфильтрацией (проникновением) наружного воздуха, через их неплотности и периодически открываемые двери.

Наружный строительный объем здания должен определяться умножением площади горизонтального сечения, взятого по внешнему обводу здания на уровне первого этажа на полную высоту здания, измеренную для панельных зданий: от уровня чистого пола (нулевой отметки) до верхней плоскости теплоизоляционного слоя чердачного покрытия, для остальных строений от уровня земли.

Расчетная температура воздуха в отапливаемых зданий принимается в зависимости от типа и назначения здания:

  • Гостиница, общежитие, административное здание, жилые дома + 20 °С;
  • Детские сады, ясли, поликлиники, амбулатории, диспансеры, больницы + 22 °С;
  • Высшие и средние специальные учебные заведения, общеобразовательные школы, школы интернаты, лаборатории, предприятия общественного питания, клубы, дома культуры + 16 °С;
  • Театры, магазины, пожарные депо + 15 °С;
  • Кинотеатры + 14 °С;
  • Гаражи + 10 °С;
  • Бани + 25 °С.

В случае если требуется отопление различных по типу зданий, теплопотребление каждого считается отдельно, полученные значения складываются и подобрать мощность котла нужно в соответствии с общей суммарной мощностью каждого отдельно стоящего задания.

Климатические условия вашего региона принимаются в соответствии с СП 131.13330 Строительная климатология. Данные по всем регионам России занесены в наш калькулятор расчета мощности котла.

Подобрать мощность котла по площади с учетом потребностей объекта в тепле на вентиляцию и горячую воду возможно только с более детальным расчетом. Его вы можете заказать в отделе сбыта котельного завода отправив заявку на электронный адрес sb@kvzr.ru или позвонив по телефонам (38-52) 29-97-41, 29-97-42.

Вопрос-ответ

  • Технические
    характеристики
  • Описание
    товара
  • Комплект
    поставки
  • Дополнительно
    потребуется
  • Сертификаты и
    гарантии
  • Отзывы о
    продукции
  • Видео
    обзор
  • Подбор
    котла
Документы завода
  • Сертификаты завода
  • Членство в СРО
  • Аттестованная технология сварки
  • Патенты на котельное оборудование
  • Товарные знаки
Смотреть все документы
Сертификат на водогрейные котлы на твердом и жидком топливе
Сертификат на водогрейные котлы на газе и жидком топливе
Сертификат на котлы отопительные паровые КП
Сертификат на топки
Сертификат на щиты управления
Сертификат на скиповые подъемники
Сертификат на золоуловители (циклоны)
Сертификат на конвейеры скребковые
Сертификат на дробилки
Сертификат на клапаны предохранительные
Сертификат на бункер-накопитель механизированный
Сертификат на автоматику газовых горелок
Сертификат о происхождении товара форма СТ-1
Членство в СРО
Членство в СРО
Аттестованная технология сварки
Свидетельство аттестованной технологии сварки
Патент на отопительный котел
Патент на водогрейный котел
Патент на топку водогрейного котла
Патент на водогрейный газовый котел
Патент на водогрейный котел
Патент на топочное устройство твердотопливного котла
Патент на водогрейный котел
HEATEXPERT товарный знак
KVZR товарный знак
STEAMEXPERT товарный знак
Другая похожая продукция
Котел под горелку российского производства
Лизинг
Вид топкиДизельная горелка
Максимальная тепловая мощность, МВт1.1
ТопливоДизель, Жидкое
Отапливаемая площадь, м²8500-12100
841 000 р. Цена с НДС
Котел 1.0 МВт газовый
Лизинг
Вид топкиГазовая горелка
Максимальная тепловая мощность, МВт1
ТопливоГаз
Отапливаемая площадь, м²7700-11000
621 000 р. Цена с НДС
Котел 1.0 МВт на мазуте
Лизинг
Вид топкиМазутная горелка
Максимальная тепловая мощность, МВт1
ТопливоМазут, Жидкое
Отапливаемая площадь, м²7700-11000
621 000 р. Цена с НДС
Котел 1.0 МВт дизельный
Лизинг
Вид топкиДизельная горелка
Максимальная тепловая мощность, МВт1
ТопливоДизель, Жидкое
Отапливаемая площадь, м²7700-11000
621 000 р. Цена с НДС
Котел под горелку российского производства
Лизинг
Вид топкиМазутная горелка
Максимальная тепловая мощность, МВт1
ТопливоМазут, Жидкое
Отапливаемая площадь, м²7700-11000
806 000 р. Цена с НДС
Котел КВ ГМ под отечественную горелку
Лизинг
Вид топкиГазовая горелка
Максимальная тепловая мощность, МВт1
ТопливоГаз
Отапливаемая площадь, м²7700-11000
806 000 р. Цена с НДС
Вы просматривали эти товары
Котел под горелку российского производства
Лизинг
Вид топкиДизельная горелка
Максимальная тепловая мощность, МВт1
ТопливоДизель, Жидкое
Отапливаемая площадь, м²7700-11000
806 000 р. Цена с НДС
Паровой котел Е 1.0 0.9 М
Лизинг
Производительность, кг/ч1000
ТопливоЖидкое, Мазут
Температура пара, не более, °C170
Давление пара, не более, МПа0.9
1 887 600 р. Цена с НДС
Котел 470 кВт на дровах
Вид топкиКолосники, ОУР
Максимальная тепловая мощность, кВт470
ТопливоДрова
Отапливаемая площадь, м²3600-5100
489 000 р. Цена с НДС
Котел 0.8 МВт на мазуте
Лизинг
Вид топкиМазутная горелка
Максимальная тепловая мощность, МВт0.8
ТопливоМазут, Жидкое
Отапливаемая площадь, м²6200-8900
536 000 р. Цена с НДС
background